板倉の小屋
板倉小屋 “慈庵”

「八尺角(ハッシャクカク)」でセルフビルドもできる小屋を
“キット”としてプロダクトしました。
この小屋を「慈庵(じあん)」と呼びます。
これは国産材のカスケード(多段階)利用方法の一つとしての
提案です。
≫ 現代版 鴨長明のくらし

「方丈庵」より一回り小さいこの小屋をどう使うのかはあなたのアイデイアしだいです。
- ◆鴨長明のように山の中の“草庵”ですか
- ◆畑の中に “農作業の休憩小屋”にしますか
- ◆道路沿いに、小粋なデザインをして “ショップ”として
使いますか
- ◆家族同然の“ペットの家”にしますか
- ◆庭先に “書斎”や “本の小屋”としてつくりますか
- ◆それとも 子どもの頃に夢みた自分だけの
秘密基地 “隠れ家” にしますか
まだまだ 使い方はありそうです・・・
≫ 豆知識 「方丈庵」って何?

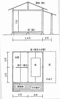
鴨長明が晩年、京都の南日野山の奥にくらしたときの住まいを“方丈の庵”として「方丈記」の中で描いている。
昔の寸法の呼び方で「一丈」とは10尺(約3m)のこと「方」とは正方形のことで、そもまま解釈すれば10尺の正方形となり、「10尺角(約3m角)」の“庵(いおり)”となる。
…ちなみに、あの「ソローの小屋」(「森の生活」を著したヘンリー・デヴィッド・ソローが自ら建てた小屋)は、10フィート×15フイートの広さで、一辺の長さはほぼ「一丈」である。(一尺と1フィートはほぼ同じ長さ)
『方丈庵は、今風にいえば「組立てハウス」である。
材料を「積むところわづかに二両」とし牛車二両で運べ、また「心にかなはぬ事あらばやすく外へ移さむがためなり」とあるように、移動可能な住居であったようだ。』
これは知人の元高校教師 尾鍋昭彦氏の推測である。
(右の図は尾鍋昭彦氏の推測図で著書「町並みと建築」より引用)

右の写真は慈庵の材料総量で、1.5tトラック一車分。
方丈庵の「積むところわづかに二両」とはこんな量で
あったのだろうか。
≫ 何が違うのか
ホームセンターなどで販売されている、あまたある「キット小屋」と違うことは。
- 木材はすべて国産それも地場の杉材を使用。
- 小屋の2倍の広さで多目的デッキがセットになっている。
- 放置された人工林を整備するために“間伐ボランティア”が全国あちらこちらで行われています。 しかしせっかく間伐した丸太の利用方法が確立していないため、丸太の扱いに苦慮して捨てられていることをよく耳にします。
この“慈庵”は「いたわり材」や間伐した丸太の利用方法としても考えられたものです。
≫ いたわり材とは

1本の杉を伐採して、玉切りしていくと必ず残る「梢端材(幹径14㎝以下の樹木の先端部)」、今までこれが使えないものとして山に切捨てられています。
本当に使えないものなのか? その答の一つがこの“慈庵”です。
梢端材を“芯持平角材”に製材したものを「いたわり材」と呼んでいます。
「木をいたわる・板に割るの意をこめて}
≫ 農家の畑にみんなで建てました

“慈庵”を農家のおばあちやんの畑につくりました
すると、いつのまにかまわりの畑がみちがえるほどきれいになりました。
おばあちゃんが“慈庵”を居場所にして農作業に精ををだしたおかげです。


この小屋には、200本以上の杉の梢端材が使われます。
捨てられていく山の木材も使い方一つで「景色を変える」ことができるのです。



